| Niveau | Pièce | Surface |
|---|
Appartement
GRASSE (06130)
- 76 m²
- 2 pièce(s)
- NC chambre(s)
- NC
POUR INVESTISSEUR !!!
Deux Appartements situés à GRASSE, Centre Historique, proches de la place Aux Aires (1er et 2ème étage de l'immeuble) à renover entierement, d'une surface totale pour les deux appartements de 77m2 environ !
- un appartement de type F1 d'une surface de 36m2 au 1er étage de l'immeuble , composé d'un hall d'entrée, d'un séjour salle à manger avec cheminée, d'une kitchenette, d'une salle d'eau avec toilette et d'une buanderie.
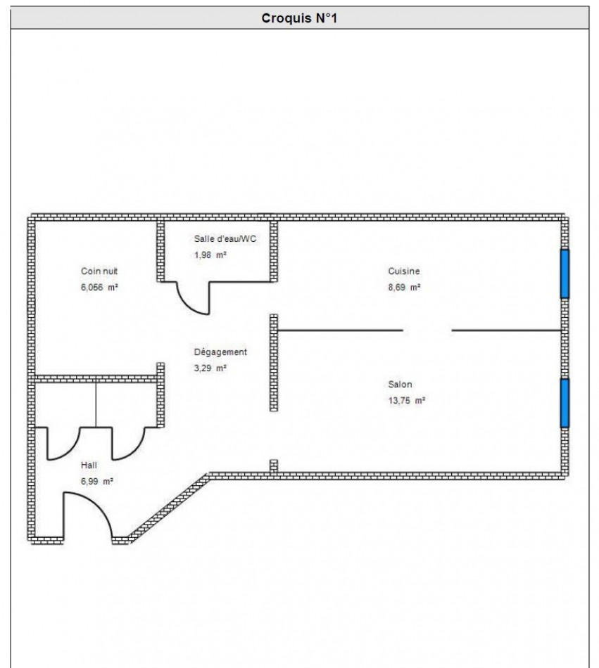
- un appartement de type F2 d'une surface de 41m2 au 2ème étage de l'immeuble, composé d'un hall d'entrée, d'un séjour salle à manger avec cheminée et une cuisine séparée, d'un coin nuit, d'une salle d'eau avec toilette.
Réf 1180. DECLIC IMMO 06
DPE : E
Les informations sur les risques auxquels ce bien est exposé sont disponibles sur le site Géorisques : www.georisques.gouv.fr.
Annonce proposée et rédigée sous la responsabilité éditoriale de FOURNIER Valérie - 06 13 12 66 43
Agent commercial RSAC N° 531 268 126 Ville du greffe : GRASSE
Bien soumis au statut juridique de la Copropriété.
Nb de lots : 9.
Charges annuelles de copropriété (Montant moyen annuel quote-part du budget prévisionnel vendeur) : 1 284 €. Le syndicat des copropriétaires fait l'objet d'une procédure.
Prix TTC et Honoraires à charge vendeur TTC
Prix moyens des énergies indexés au 01/01/2021 (abonnement compris). Montant estimé des dépenses annuelles d'énergie pour un usage standard : entre 688 € et 932 € par an.
Surface carrez : 76,71 m2
Notre barème d'honoraires
* Honoraires charge vendeur.

Montant estimé des dépenses annuelles d'énergie pour un usage standard: entre 688,00€ et 932,00€ par an.
Prix moyen des énergies indexés au 01/01/2021 (abonnement compris)
cette annonce à un ami
Veuillez réessayer à nouveau











