| Niveau | Pièce | Surface |
|---|
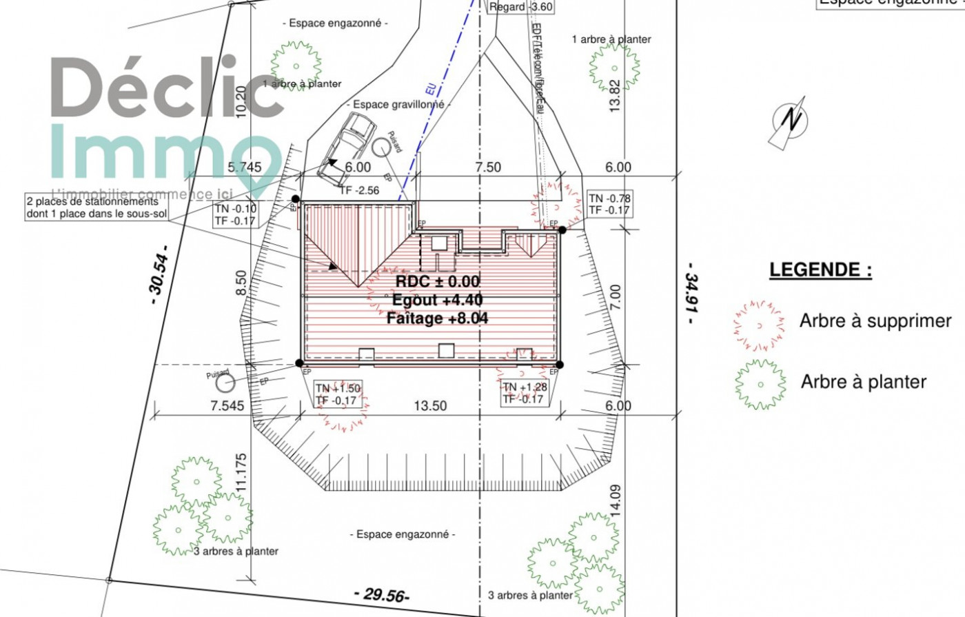
Terrain constructible
GUILLERVAL (91690)
- NC
- NC pièce(s)
- NC chambre(s)
- 858 m²
Sur la commune de Guillerval, à 15 min d'Etampes ce terrain de 858 m² est prêt à accueillir votre projet de construction. Entièrement viabilisé, il surplombe la route et offre une vue dégagée sur la campagne environnante.
Entrepreneur individuel Honoraires : 5 % TTC inclus charge acquéreur (95 000 € hors honoraires)
Notre barème d'honoraires
* Honoraires : 5% TTC inclus charge acquéreur (95 000 € hors honoraires).
cette annonce à un ami
Veuillez réessayer à nouveau











