| Niveau | Pièce | Surface |
|---|
Maison
PORTIRAGNES (34420)
- 80 m²
- 3 pièce(s)
- 2 chambre(s)
- 175 m²
Idéalement située sur la commune de Portiragnes, entre cœur de village et station balnéaire, cette maison neuve en cours de construction bénéficie d’un emplacement privilégié à seulement quelques minutes de Portiragnes-Plage.
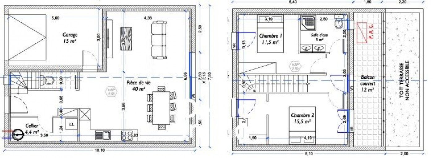
D’une surface habitable de 80 m², elle propose une exposition traversante est-ouest qui permet de profiter d’un bel ensoleillement tout au long de la journée.
Dès l’entrée, un cellier de plus de 4 m² offre un espace de rangement pratique et fonctionnel, idéal pour l’organisation du quotidien suivie d'une pièce de vie spacieuse et lumineuse de 40 m²
À l’étage, l’espace nuit se compose de deux chambres de 11 m² et 15 m² ainsi que d’une salle de bain équipée avec WC, créant un étage confortable et bien agencé, un WC indépendant se trouve également en rez de chaussée.
À l’extérieur, la maison offre plusieurs espaces de vie en plein air avec une terrasse en rez-de-chaussée, un jardin privatif à aménager selon vos envies, et un balcon couvert de 12 m² à l’étage pour profiter de la douceur du climat en toute saison
Un garage de 15 m² complète l’ensemble ainsi que 2 places de stationnement.
Construite selon les dernières normes environnementales RT 2020, cette maison garantit une faible consommation énergétique grâce à des matériaux de qualité, une pompe à chaleur, du double vitrage, un ballon thermodynamique et une excellente isolation thermique
La construction bénéficie de la garantie décennale ainsi que de la garantie dommages-ouvrage, pour un achat en toute tranquillité
Avec des frais de notaire réduits à environ 3,5 % et une livraison prévue en octobre 2025, cette maison représente une belle opportunité à saisir, que ce soit pour y vivre à l’année ou pour profiter d’un pied-à-terre proche de la mer
Pour tout renseignement complémentaire ou pour découvrir les plans, contactez-moi au 06 84 33 54 74, disponible 7 jours sur 7
Sylvia CROS, Déclic IMMO 34
Réf 1603. DECLIC IMMO 34
Les informations sur les risques auxquels ce bien est exposé sont disponibles sur le site Géorisques : www.georisques.gouv.fr.
Annonce proposée et rédigée sous la responsabilité éditoriale de CROS Sylvia - 06 84 33 54 74 - sylvia.cros@declic.immo
- RSAC N° 920 101 730 Ville du greffe : BEZIERS Réf 1603. DECLIC IMMO 34
Les informations sur les risques auxquels ce bien est exposé sont disponibles sur le site Géorisques : www.georisques.gouv.fr.
Annonce proposée et rédigée sous la responsabilité éditoriale de CROS Sylvia - 06 84 33 54 74 - sylvia.cros@declic.immo
- RSAC N° 920 101 730 Ville du greffe : BEZIERS
Prix TTC et Honoraires à charge vendeur TTC
Notre barème d'honoraires
* Honoraires charge vendeur.
cette annonce à un ami
Veuillez réessayer à nouveau



















