| Niveau | Pièce | Surface | 
|---|
Maison
GRASSE (06130)
- 164 m²
 - 7 pièce(s)
 - 4 chambre(s)
 - NC
 
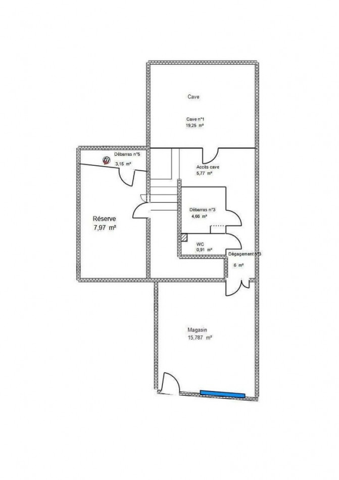
Rare sur le secteur - Maison de Ville 7 Pièces sur 4 Niveaux de 165 m² habitable et un total de 252 m², bénéficiant d'un local commercial en RDC et 2 caves en sous-sol.
Située dans le centre ancien avec un accès facile, cette charmante maison de ville sur 4 niveaux offre un vaste potentiel, alliant espace de vie et possibilité d’activité commerciale en rez-de-chaussée.
D’une belle superficie, la maison comprend 7 pièces principales, réparties sur plusieurs niveaux, offrant ainsi une belle modularité et de nombreuses options d’aménagement. Le rez-de-chaussée est consacré à un espace commercial avec vitrine, idéal pour une activité professionnelle, un commerce ou un bureau.
Délégation de mandat. 
Prix 299 980 € TTC et Honoraires à charge vendeur TTC 
Prix moyens des énergies indexés sur les années 2021 2022 2023 (abonnement compris). Montant estimé des dépenses annuelles d'énergie pour un usage standard : entre 2 809 € et 3 801 € par an.
Réf 1127. DECLIC IMMO 06 
DPE : E
Les informations sur les risques auxquels ce bien est exposé sont disponibles sur le site Géorisques : www.georisques.gouv.fr. 
Annonce proposée et rédigée sous la responsabilité éditoriale de RINGENBACH Arnaud - 06 60 80 54 12 - arnaud.ringenbach@declic.immo 
- EI - RSAC N° 480 997 410 Ville du greffe : GRASSE
Notre barème d'honoraires
* Honoraires charge vendeur.
							
Montant estimé des dépenses annuelles d'énergie pour un usage standard: entre 2 809,00€ et 3 801,00€ par an.Prix moyens des énergies indexés sur les années 2021, 2022 et 2023 (abonnement compris)
cette annonce à un ami
Veuillez réessayer à nouveau
				








































